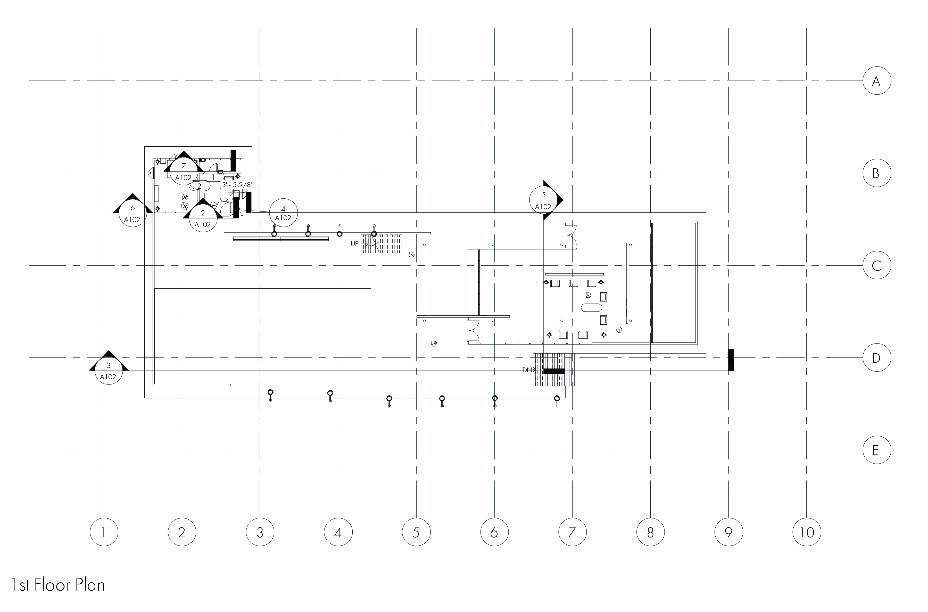
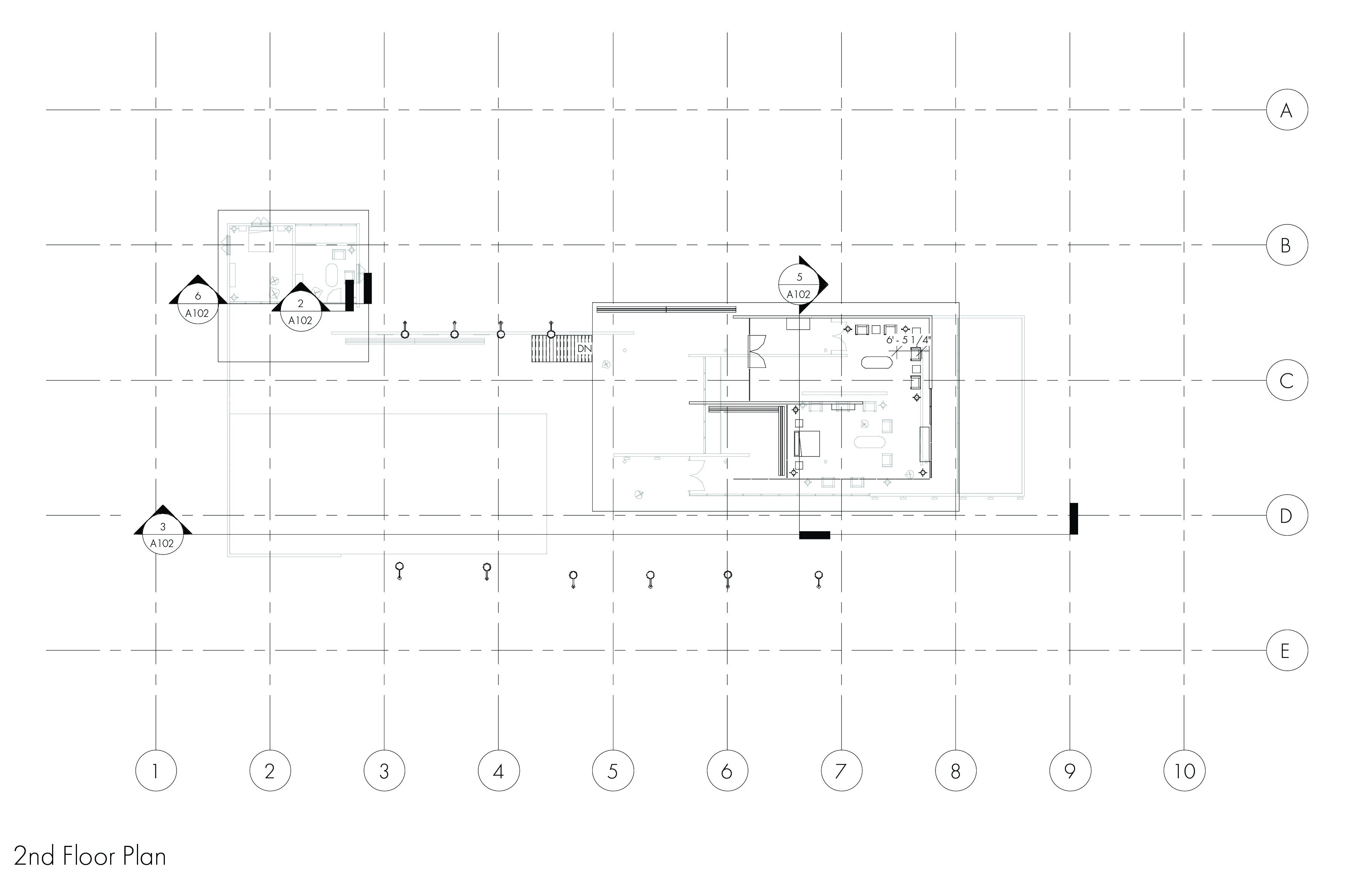
These projects provided me with exposure to architecture software tools, specifically Revit and Dynamo. I embarked on the recreation of Mies van der Rohe’s iconic Barcelona Pavilion, employing BIM practices to meticulously craft floor plans, sections, elevations, and renderings.




