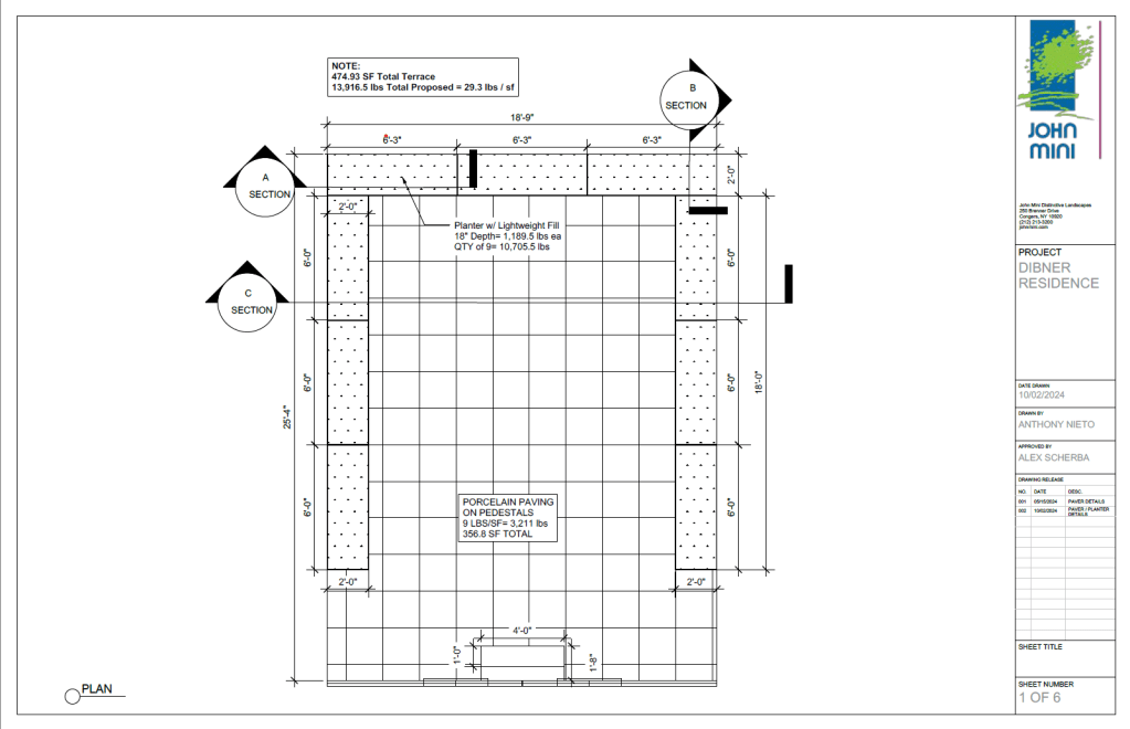
The Dibner Residence is a residential project currently in the estimation phase. Below, you’ll find images of preliminary plans, models, and renderings that represent the conceptual vision for the space. These designs are being fine-tuned as we move through the estimation process to align with the client’s needs and the project’s budget.





