144 W 125th St, New York, NY 10601
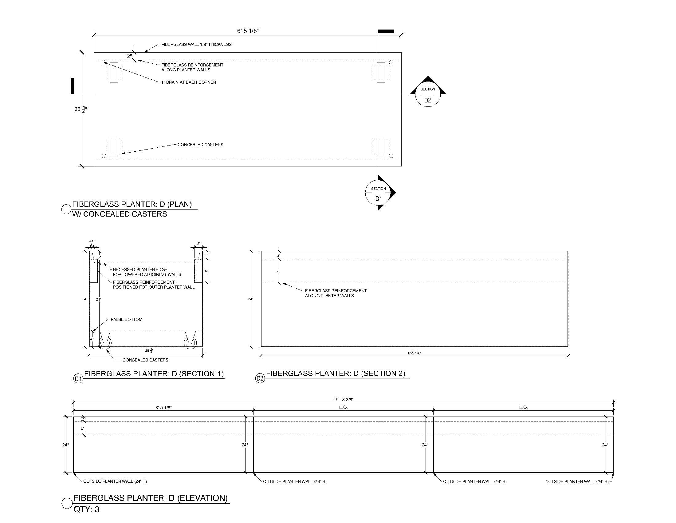
Project in progress, Studio Museum Harlem required green roof and custom fiberglass planter installation. I have designed all detail drawings for this project, visiting the site multiple times to gather field measurements and roof elevations in order to create drawings for submission. I oversaw the installation of the project, navigating site issues with management team at Sciame. Phase two was completed in Spring 2025. Partnering with a local landscape architecture firm, we planted the entire site with a unique plant palette. I oversaw the fabrication and installation of 6 custom concrete “stoops” on site.
































